Your browser does not support inline frames or is currently configured not to display inline frames.
Catalog
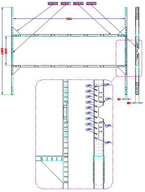
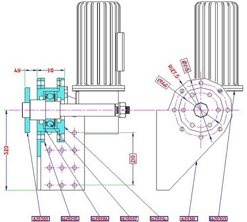
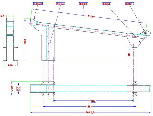
Design
Drawings
Gallery
Tube Galvanizing
Machine
Model TGS162