Your browser does not support inline frames or is currently configured not to display inline frames.
Catalog
Design
Drawings
Gallery
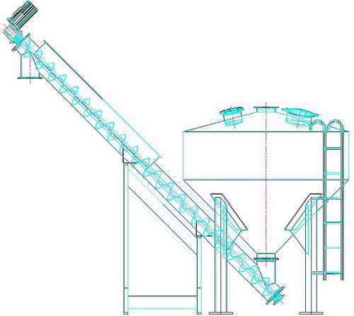
Auger Conveyor
Model AC048