|
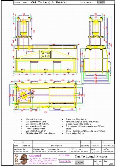
Shearer unit has been produced for the cold rolled forming industry.
The shearer comprises of a hydraulic shear which would be
integrated on a production line with other roll forming equipment
for producing cold rolled sections. It could be Stand alone or
integrated with production line.
The shearer is supplied with hydraulic valve which is actuated from
adjustable distance set to shear at any desired length .

Fly shearer base
|