Catalog

Design

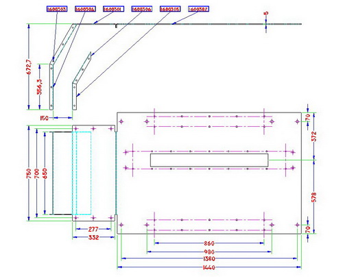
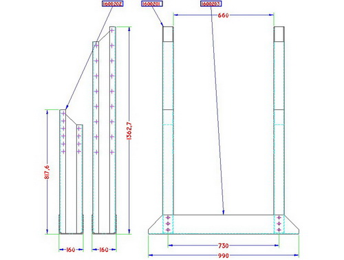
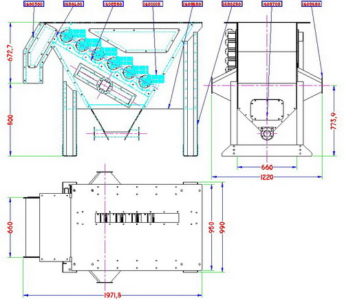
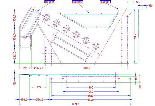
Drawings

Gallery

 

Step Cleaner

Model SC160